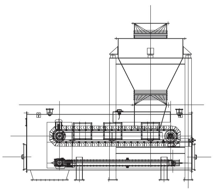
立磨鎖風給料機特性
立磨給料系統回轉鎖風閥設備故障多,漏風嚴重對生產產生較大影響。回轉鎖風閥及回轉轉子秤頻繁粘附、堵料、卡料現象嚴重,經常造成系統跳停,嚴重時直接將輸送設備卡死,嚴重影響了立磨系統的生產運行。
FLT系列立磨鎖風給料機主要用于水泥立磨的原材料輸送,保證物料在輸送時整個輸送體外處于無壓狀態。廣泛用于建材、冶金、礦山等行業,是原料處理或連續生產過程中不可缺少的設備,它具有以下主要特點
1、有效防止物料對設備的粘、卡、堵,提高系統運轉率,減少供料不足對燒成系統的影響。
2、顯著降低工藝故障停機次數,提高生料系統運轉時間,減少因系統開停増加的電耗。
3、有效降低故障損毀和運行磨損,減少維護工作和維修費用。
4、良好的鎖風能提高磨內對細粉的談佛外側力和分離效果,從而提高磨機系統臺時。進一步降低粉磨電耗。
5、良好的鎖風能有效降低立磨循環風機和窯尾排風機的運行負荷,降低電耗。
6、選用YVF2系列變頻調速電動機與行星齒輪減速機減速傳動,簡化了結構,提高了傳動效率。通過變頻調速裝置可實現喂料量的平穩調節,功率配置和恒轉矩輸出適應了負載起動、來料多變的工況,使配套設備受料均勻,工作平穩,有利于實現系統自動化,較大范圍的滿足不同生產量要求的需要。
7、主軸與軸承采用退卸套聯接,方便裝卸和檢修。
8、主動鏈輪采用整體式,鏈條采用推土機用履帶鏈軌,運行安全可靠,承載能力高。采用全新的輸送槽板設計,鋼性好,耐沖擊、密閉性能好,無漏料、撒料、跑偏等現象。
9、槽板的支承結構采用滾輪和路軌支承結構,剛度大、耐沖擊、運行阻力小,能減緩物料對槽板的沖擊,延長槽板使用壽命;提高整機使用壽命
10、尾部拉緊裝置設有彈簧裝置、滑動軸承座,能減緩鏈條沖擊載荷,延長鏈條使用壽命。
11、根據現場實際情況,可選用水平或采用大支腳落地,減少土建,最大傾角可達100

24小時銷售熱線:
400-0536-023
地址:山東省濰坊市臨朐縣冶源鎮臨九路東側
商 務 電 話: 139-0536-2323
商 務 QQ: 21123076
辦 公 室: 0536-3621111
版權所有:臨朐三星電子有限公司 魯ICP備17021634號-2 網站建設:中企動力 濰坊